- €405.000
Principale
- Unifamiliare Semindipendente
- 3
- 2
- 1
- 204 Mq
- 2025
Descrizione
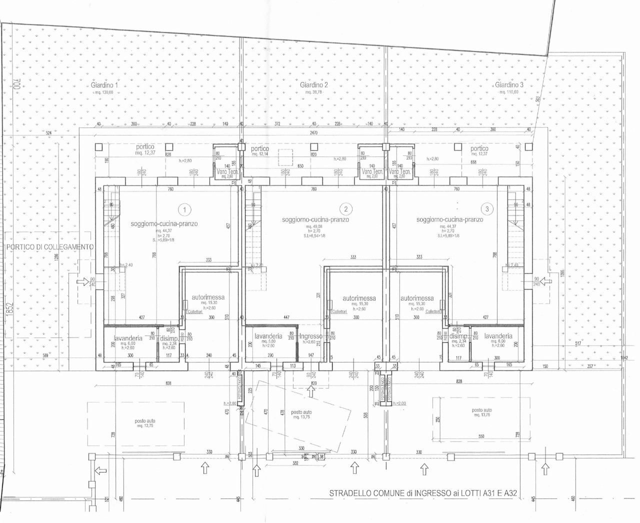
Parma Sud a soli 20′ in auto dal centro della città. Affacciati sul verde di un parco all’interno di un delizioso e tranquillo piccolo quartiere di ville e villini. Un’ oasi di tranquillità, senza traffico. Villa per oltre 200mq c.li. Di testa in trifamigliare in costruzione. Classe A4 con capitolato di pregio, consegnata full optional. Esterno rifinito in mattoni a F.V. e intonaco, ingressi carraio e pedonale indipendenti, splendido portico a tutt’altezza. P.T. con grande zona giorno, cucina a vista (o separata abitabile), luminosissimo grazie alle due ampie porta-finestra che ci permettono di accedere allo splendido portico e al giardino di oltre 130mq. Completa il piano terra il bagno-lavanderia, e il locale tecnico. P. primo: 3 camere matrimoniali di cui una con balcone), disimpegno, secondo bagno, balcone. Sul fronte dell’abitazione, a fianco dell’ingresso pedonale e carraio, c’è un ampio spazio pavimentato oltre il posto auto per una seconda autovettura. Autorimessa con accesso diretto all’abitazione. Impiantistica di assoluto livello con pannelli fotovoltaici 5,5 kw, pompa di calore, riscaldamento a pavimento. Tetto in legno lamellare a vista ad impreziosire gli ambienti del primo piano, serramenti interni in PVC ed esterni in alluminio ad alto contenimento termico ed acustico, allarme installato perimetrale e volumetrico, climatizzazione, addolcitore, pavimenti in legno zona camere, possibilità di personalizzare le rifiniture interne. rif.1050. €405.000 c.so Autorimessa. Acconti garantiti da fidejussione. Consegna autunno 2027. L’immobile è in costruzione: le immagini pubblicate si riferiscono ad immobili simili già ultimati dall’impresa. Precisiamo che, al fine di tutelare la privacy dei venditori, l’indirizzo pubblicato potrebbe non corrispondere all’esatta localizzazione dell’immobile. L’indirizzo preciso verrà fornito previo incontro in ufficio.
Classe energetica
-
Classe Energetica: A4
- A+
- A
- B
- C
- D
- E
- F
- G
- H
Dettagli
Aggiornato su Aprile 15, 2026 a 4:13 am-
Proprietà rif. hz-1050
-
Prezzo €405.000
-
dimensione Proprietà 204 Mq
-
Area Terreno 204 Mq
-
Camere da letto 3
-
Bagni 2
-
Autorimessa 1
-
Anno costruzione 2025
-
Tipo Proprietà Unifamiliare Semindipendente
-
Stato Proprietà In costruzione, Vendita
Indirizzo
Apri in Google Maps-
Città: Parma
-
comune: PR
-
codice postale: 43121
-
Zona: PERIFERIA SUD
-
Provincia: Italia
Calcolatore mutuo
-
Acconto
-
Loan Amount
-
Monthly Mortgage Payment
Programma una visita
Annunci simili
- Federico Bologni




























