- €339.000
Principale
- Appartamento
- 3
- 2
- 1
- 121 Mq
- 2024
Descrizione
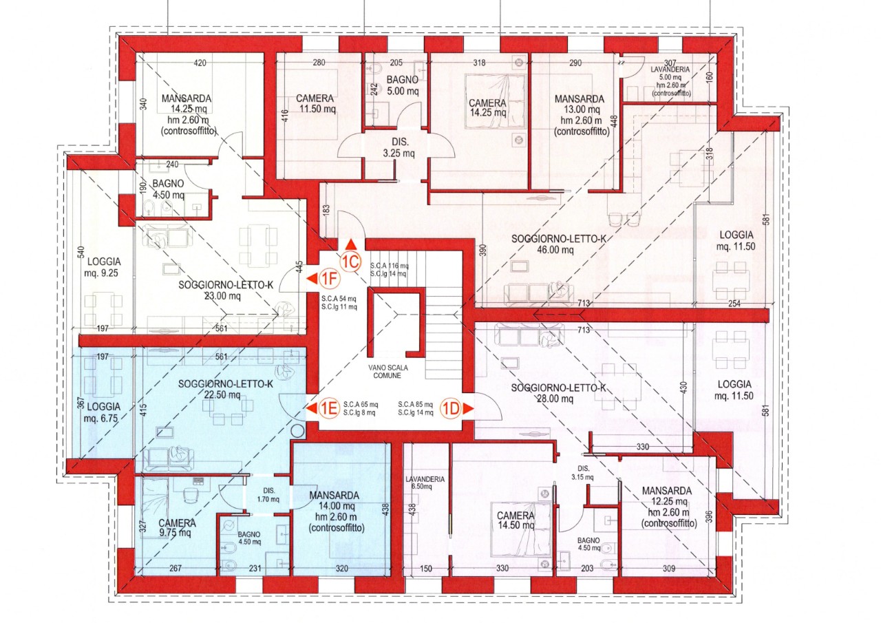
Sala Baganza – In posizione privilegiata ai confini con i Boschi di Carrega pur restando a pochi passi dal centro paese. Silenzio, tranquillità e vista sul verde. Residenza signorile al primo ed ultimo piano, con 3 camere e grande zona giorno per oltre 45mq. Punto focale dell’abitazione la spettacolare vetrata di quasi 6m lineari esposta a sud. Entrando in casa la luce ci accoglie ad ogni ora del giorno. Accesso alla loggia abitabile strutturata con setti in muratura per permettere pranzi e cene all’aperto in piena privacy. Cucina a vista o separata. Disimpegno, 2 matrimoniali, 1 doppia, 2 bagni entrambi finestrati, Il progetto prevede la realizzazione di nuovi fabbricati residenziali dalle linee architettoniche moderne, composti da poche unità e abitazioni di lusso. Disponibili appartamenti con 1-2-3 camere, con terrazzi o giardino. Tutti gli appartamenti saranno realizzati in Classe Energetica “A4” con impianti tecnologici all’avanguardia e per garantire la massima efficienza energetica. Struttura antisismica ed elevato isolamento acustico, impianto di riscaldamento/raffrescamento e fotovoltaico autonomo. Ottimo capitolato per finiture personalizzabili anche nella gestione degli spazi interni, pavimenti in grès porcellanato e/o parquet in rovere, riscaldamento a pavimento, climatizzazione, predisposizione impianto di allarme, videocitofono, sistemi oscuranti motorizzati, sanitari sospesi. E’ possibile ad oggi usufruire della detrazione fiscale decennale del 50% sul costo di costruzione per autorimesse e posti auto. Ape A4. RIF.962. €339.000 compreso ampia autorimessa singola. Si precisa che alcune delle immagini si riferiscono a fabbricati già ultimati o in corso di costruzione da parte dell’impresa e sono pubblicate a solo titolo esemplificativo. Consegna fine 2026.
Classe energetica
-
Classe Energetica: A4
- A+
- A
- B
- C
- D
- E
- F
- G
- H
Dettagli
Aggiornato su Aprile 15, 2026 a 4:10 am-
Proprietà rif. hz-962
-
Prezzo €339.000
-
dimensione Proprietà 121 Mq
-
Area Terreno 121 Mq
-
Camere da letto 3
-
Bagni 2
-
Autorimessa 1
-
Anno costruzione 2024
-
Tipo Proprietà Appartamento
-
Stato Proprietà In costruzione, Vendita
Indirizzo
Apri in Google Maps-
Città: Sala Baganza
-
comune: PR
-
codice postale: 43038
-
Provincia: Italia
Calcolatore mutuo
-
Acconto
-
Loan Amount
-
Monthly Mortgage Payment
Programma una visita
Annunci simili
- Federico Bologni









