- €750
Principale
- Appartamento
- 1
- 1
- 0
- 40 Mq
- 1920
Descrizione
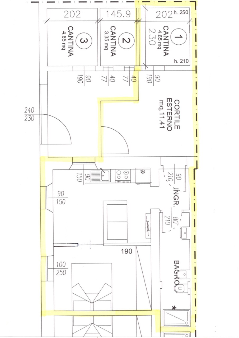
Appartamentino nuovo, in classe A, con ingresso indipendente, spazio esterno privato e cantina.
Nel cuore dell’Oltretorrente, in un fabbricato storico appena ristrutturato. In un contesto a ricordare l’atmosfera tipica atmosfera delle case del centro storico l’ingresso è indipendente e diretto dalla via, attraverso il cancelletto si accede nel cortiletto di proprietà, dove troviamo anche la cantina. Il portoncino blindato ci conduce all’interno, lo spazio è ben organizzato: soggiorno con cucina a vista completa di piano cottura a induzione, forno, lavastoviglie, frigo, tavolo a scomparsa, con sedie e divano letto. Camera con letto matrimoniale con cassettone e materasso in memory , armadio a 3 ante. Bagno completo. Gli arredi indicati , tutti nuovi, sono in consegna e l’appartamento sarà completo a partire dal 15 febbraio. Spazio esterno privato con comoda cantina di fronte. Per posizione rappresenta inoltre la soluzione ideale per chi ama la comodità del centro rimanendo comodo agli spostamenti in auto. Riscaldamento e raffrescamento con pompa di calore con impianto fotovoltaico autonomo, Ape A. Rif.1059. €750/mese. Cauzione 2 mensilità. Spese condominiali non ancora quantificabili essendo un nuovo fabbricato, ma saranno irrisorie considerato l’ingresso indipendente. Si affitta solo a referenziati in possesso di contratto di lavoro a tempo indeterminato e/o studenti con garante. Dato l’elevato numero di richieste sarà data priorità al contatto diretto telefonico, nel caso di invio di e-mail tramite portali a coloro i quali indicheranno nella richiesta quante più informazioni possibili (situazione lavorativa, composizione del nucleo famigliare etc). Grazie per la collaborazione.
Classe energetica
-
Classe Energetica: A4
- A+
- A
- B
- C
- D
- E
- F
- G
- H
Dettagli
Aggiornato su Gennaio 23, 2026 a 4:14 am-
Proprietà rif. hz-1059
-
Prezzo €750
-
dimensione Proprietà 40 Mq
-
Area Terreno 40 Mq
-
Camera da letto 1
-
Bagni 1
-
Autorimessa 0
-
Anno costruzione 1920
-
Tipo Proprietà Appartamento
-
Stato Proprietà Nuova costruzione, Vendita
Indirizzo
Apri in Google Maps-
Città: Parma
-
comune: PR
-
codice postale: 43125
-
Zona: CENTRO
-
Provincia: Italia
Calcolatore mutuo
-
Acconto
-
Loan Amount
-
Monthly Mortgage Payment
Programma una visita
Annunci simili
- Federico Bologni




























