- €334.000
Principale
- Appartamento
- 2
- 2
- 0
- 112 Mq
- 2025
Descrizione
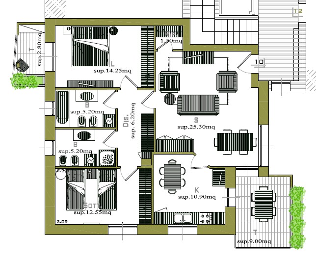
San Pancrazio – ULTIMO APPARTAMENTO DISPONIBILE – SISMABONUS ACQUISTI detrazione fiscale €48.000 – Splendido Tri-Quadrilocale all’ultimo piano con loggia e terrazzo – Edificio in costruzione in classe A4-N.ZEB consegna marzo 2027 – L’appartamento si compone di un’ ampio e luminosissimo living con cucina separata che, a seconda delle esigenze, può trasformarsi in un comodo studio/camera spostando la cucina a vista nel soggiorno, accesso alla loggia abitabile per poter cenare e pranzare all’aperto in piena privacy. Disimpegno, matrimoniale con delizioso terrazzino, seconda matrimoniale, 2 bagni ampi ed entrambi finestrati. L’area dista circa 150 metri da Via Emilia Ovest. In prossimità si possono trovare molteplici servizi, Posta, farmacia, supermercato, ecc., ivi compresa la fermata dei mezzi pubblici. Il centro di Parma è facilmente raggiungibile sia con i mezzi pubblici che in bicicletta tramite il marciapiede ciclopedonale. Il progetto prevede la realizzazione di due nuovi fabbricati residenziali dalle linee architettoniche moderne. Tutti gli appartamenti saranno realizzati in Classe Energetica “A4” con struttura antisismica ed elevato isolamento acustico, impianto di riscaldamento/raffrescamento e fotovoltaico autonomo. Ottimo capitolato per finiture personalizzabili anche nella gestione degli spazi interni, pavimenti in grès porcellanato e/o parquet in rovere, riscaldamento a pavimento, climatizzazione, predisposizione impianto di allarme, videocitofono, sistemi oscuranti motorizzati, sanitari sospesi, impianto trattamento acqua. E’ possibile ad oggi usufruire della detrazione fiscale decennale del 50% sul costo di costruzione per autorimesse e posti auto. Ape A4. RIF.946. €334.000. Cantina €4.000. Autorimessa €22.000. Consegna entro marzo 2027. Sarà possibile usufruire del “SISMABONUS ACQUISTI” (DL n°63, comma 1-septies) grazie al quale l’Acquirente PUO’ OTTENERE UNA DETRAZIONE FISCALE DECENNALE IL CUI AMMONTARE SARA’ PARI AL 36% DI 96.000€ PER UNITA’ IMMOBILIARE indipendentemente dalla sua dimensione. Precisiamo che, al fine di tutelare la privacy dei venditori, l’indirizzo pubblicato potrebbe non corrispondere all’esatta localizzazione dell’immobile. L’indirizzo preciso verrà fornito previo incontro in ufficio. Per informazioni e/o per fissare un appuntamento senza impegno, potete contattarci al numero indicato. Siamo aperti dal lunedì al venerdi’ 9-13 15-19. Effettuiamo valutazioni gratuite e senza impegno dei vostri immobili.
Classe energetica
-
Classe Energetica: A4
- A+
- A
- B
- C
- D
- E
- F
- G
- H
Dettagli
Aggiornato su Aprile 15, 2026 a 4:10 am-
Proprietà rif. hz-946
-
Prezzo €334.000
-
dimensione Proprietà 112 Mq
-
Area Terreno 112 Mq
-
Camere da letto 2
-
Bagni 2
-
Autorimessa 0
-
Anno costruzione 2025
-
Tipo Proprietà Appartamento
-
Stato Proprietà In costruzione, Vendita
Indirizzo
Apri in Google Maps-
Città: Parma
-
comune: PR
-
codice postale: 43126
-
Zona: PERIFERIA OVEST
-
Provincia: Italia
Calcolatore mutuo
-
Acconto
-
Loan Amount
-
Monthly Mortgage Payment
Programma una visita
Annunci simili
- Federico Bologni




















